For all Sales Enquires please email:
bvsales@bakubungvillas.co.za
Home
About Us
Property Investment
Stand Options
Valley Villas
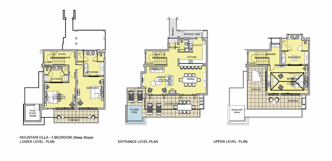
Mountain Villas
Building Specifications & Finishes
Interior Design
Fractional Ownership
Facilities & Activities
Contact Us
Luxury Mountain Villa Type 1
3 Bedroom Design Option:
4 Bedroom Design Option: